CAD / CAM

We have our CAD / CAM center where our technicians process the documentation delivered by our customers. 

Odoo image and text block

We will work out:

  • 3D visualizations of designs

  • Programs for CNC milling machines

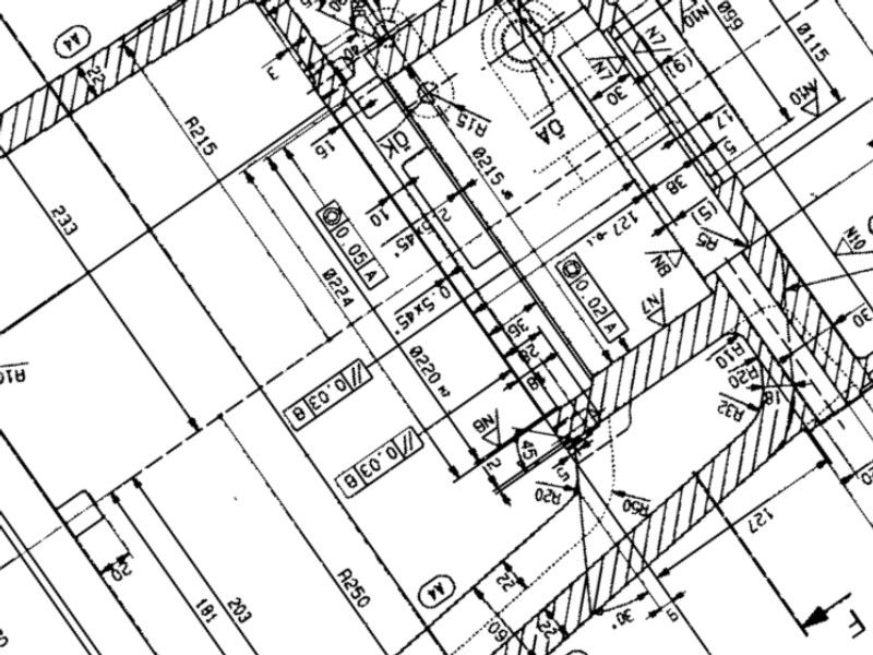
  • Drawing documentation

Documentation we process: 

  • 3D data

  • Drawing documentation in electronic version

  • Drawing documentation in paper version

Odoo text and image block
Odoo image and text block

Formats we process:

  • Native format NX

  • Engineering fomats

    • STEP

    • IGES

    • STL

    • DXF

    • DWG

Our advantages: 

  • We present 3D designs to our customers for reviews and comments

  • We optimize programs for our CNC milling machines concerning quality and optimal processing

  • We check the programmed processes

Odoo text and image block
Odoo image and text block

Odoo image and text block

We use:

  • NX System Siemens

    • CAD drawing

    • CAM programming

  • VERICUT program

    • program optimization

    • process control